0294-281670
info@vlaanderenmeybaum.nl

Spoorlaan 10 + 11 Abcoude

Aangekocht

Spoorlaan 10 + 11 Abcoude Nederland

Omschrijving

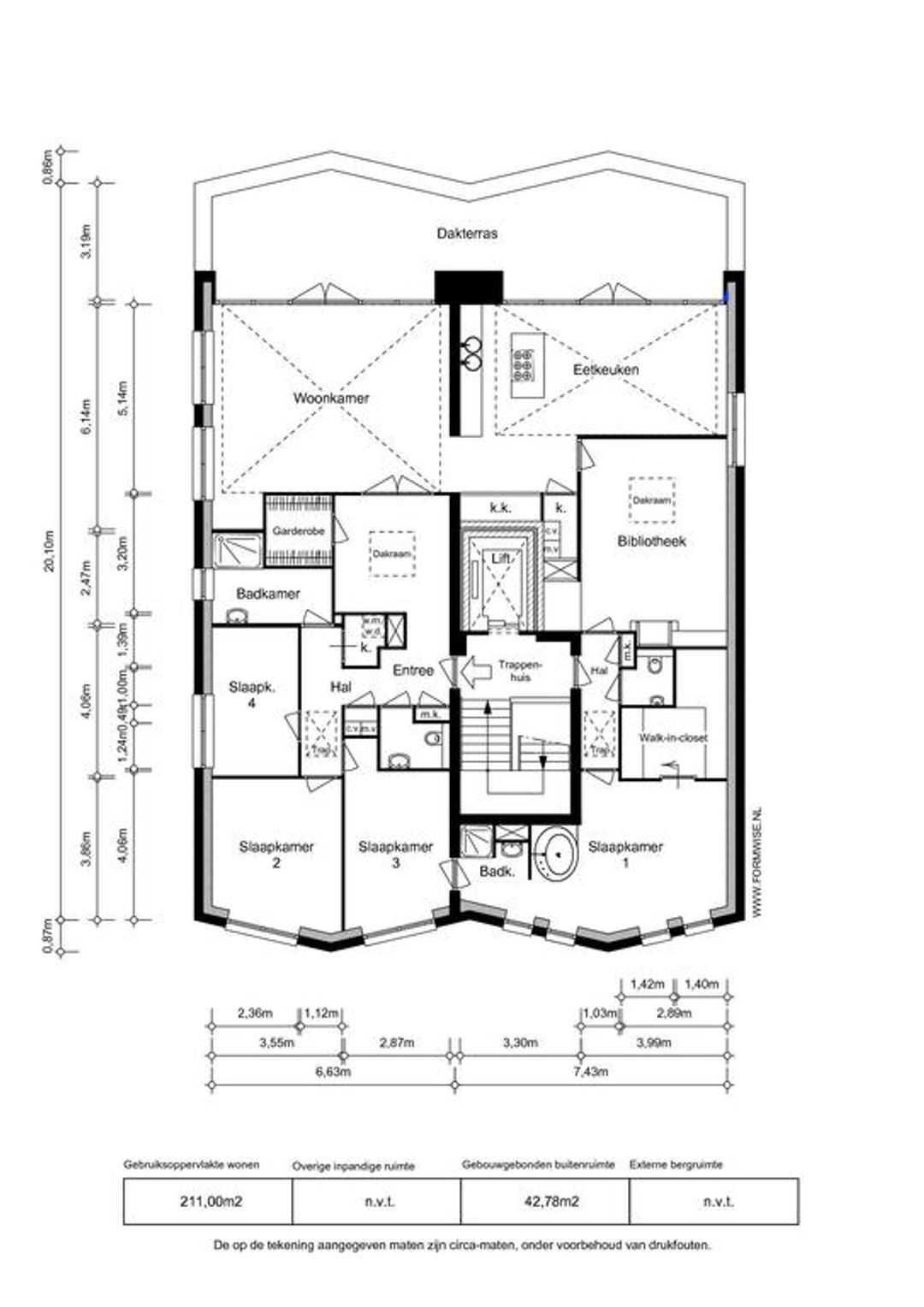
Ca. 211m² woonoppervlak met een zonnig dakterras van ruim 40m² en een eigen garage voor twee auto’s in de onderbouw. Het appartement is gelegen in een kleinschalige ontwikkeling en is zeer smaakvol en met hoogwaardige materialen afgewerkt.

Lees de volledige omschrijving

Contact

Kenmerken

Algemeen

Aangeboden sinds
6+ maanden
Status
Aangekocht
Soort woonhuis
Appartement, penthouse
Soort bouw
Bestaande bouw
Bouwjaar
2008

Oppervlakten en inhoud

Wonen
211 m²
Gebouwgebonden Buitenruimte
43 m²
Inhoud
611 m³

Indeling

Aantal kamers
6 kamers (4 slaapkamers)
Aantal badkamers
2 badkamers
Badkamervoorzieningen
Douche, ligbad
Aantal woonlagen
1
Voorzieningen
Jacuzzi, lift, mechanische ventilatie

Energie

Energielabel
A
Isolatie
Dubbel glas

Kadastrale gegevens

Perceelnaam
Abcoude A 3315
Eigendomssituatie
Volle eigendom
Perceel
ACD00-A-3315
Perceelnaam
Abcoude A 3315
Eigendomssituatie
Volle eigendom
Perceel
ACD00-A-3315

Buitenruimte

Tuin
Zonneterras
Zonneterras
43 m²

Garage

Capaciteit
2 auto's
Bekijk alle kenmerken